Die neu restaurierte Klosterkirche

Wer in der Stille der Klosterkirche Wonnenstein sitzt und die prächtigen Altare betrachtet oder vor der Schwarzen Madonna betet, hat das Gefühl, die Jahrhunderte zu spüren. Seit der Fertigstellung im Jahr 1688 wurden hier unzählige Messfeiern gehalten, Gebete gesprochen und Lieder gesungen. Oder einfach geschwiegen.

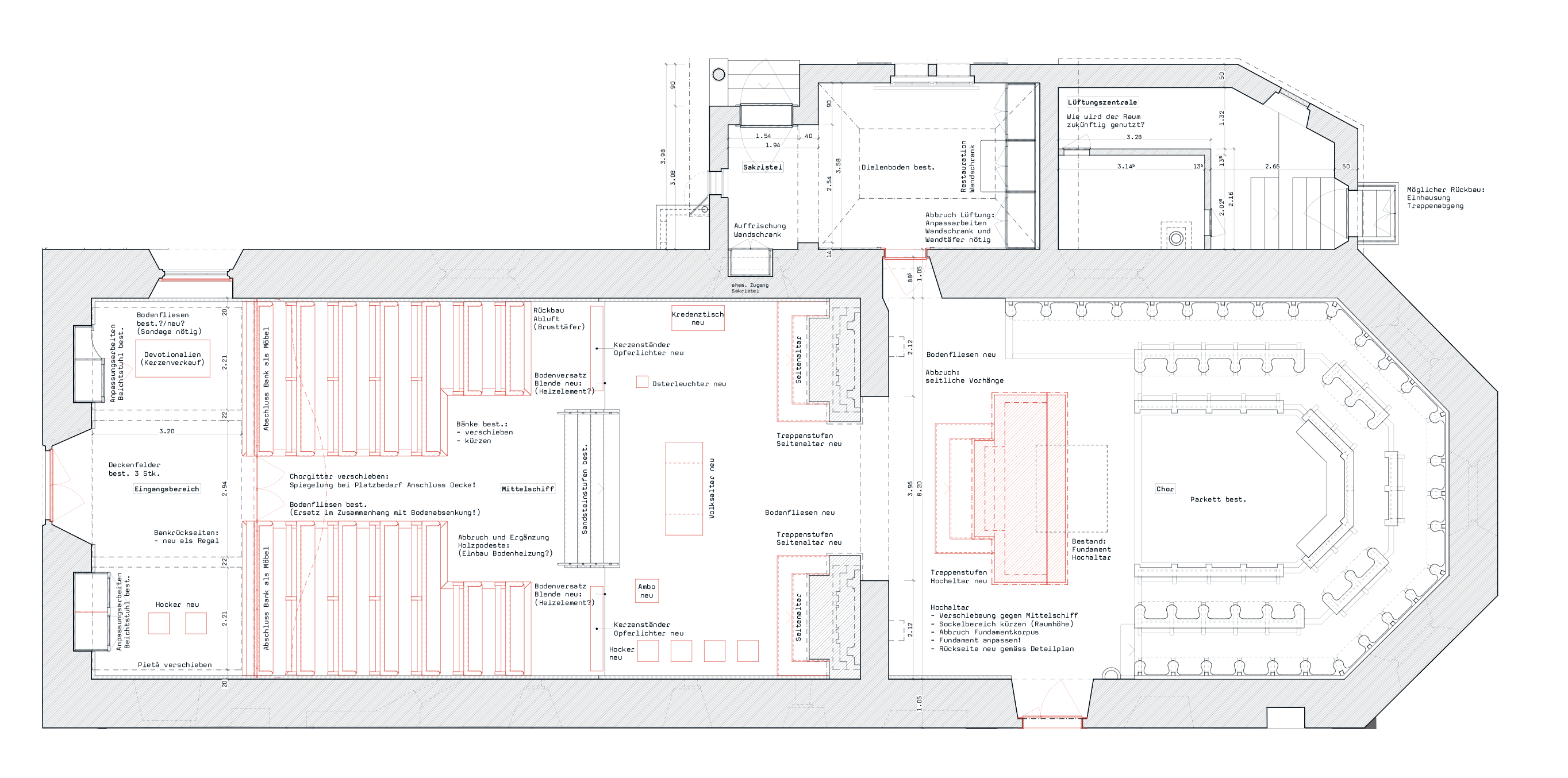
Die Klosterkirche wurde in den Jahren 2022-24 umfassend restauriert. Dabei erfuhr sie keine grundsätzliche Veränderung. Im Mittelpunkt steht weiterhin der Gottesdienst. Das Kloster Wonnenstein bleibt zudem ein Ziel für Wallfahrten. Insbesondere die „Schwarze Madonna“, eine Kopie des Einsiedler Gnadenbildes, zieht viele Gläubige an. Für alle Besucher soll die Kirche zum stillen Gebet grundsätzlich offen stehen.

Die Kirchen-Restaurierung
2022-2024

Die Klosterkirche bleibt grundsätzlich eine katholische Kirche, doch sie wird in Zukunft auch als Kulturraum genutzt werden können. Neben den liturgischen Nutzungen soll sie auch für kulturelle Anlässe geöffnet werden. Im Vordergrund stehen Konzerte und ähnliche Veranstaltungen. Diese können von Solisten, kleineren Ensembles oder auch im Chor-Rahmen dargeboten werden. Die historische Orgel von Klingler/Goll/Gattinger wird dafür eine geschätzte Begleiterin sein. Der Bereich des Chorgestühls hat eine deutliche Aufwertung erhalten und kann nun als eigenständiger Gebets-Raum genutzt werden.

Die Restaurierung orientierte sich am Zustand von ca. 1900 sowie an den zukünftigen Anforderungen an eine offene Kirche. Sie erhielt wieder eine klare Raumabfolge aus Eingangsbereich, Kirchenschiff mit Bestuhlung, Altarbereich und Chor. Wertvolle Objekte wie Altäre, Fenster und Orgel wurden sorgfältig restauriert. Die Restaurierung hielt sich an die Leitsätze der Denkmalpflege Schweiz und erfolgte in enger Zusammenarbeit mit der Denkmalpflege Appenzell-Innerrhoden. Der Grossteil der Arbeiten betraf die Erhaltung und Auffrischung der vorhandenen Bausubstanz sowie die Modernisierung der Technik.

Schwarze Madonna

Das Kloster Wonnenstein ist ein Ziel für Wallfahrten. Insbesondere die «Schwarze Madonna», eine Kopie des Einsiedler Gnadenbildes, zieht viele Gläubige an. Für diese Besucherinnen und Besucher soll die Kirche zum stillen Gebet grundsätzlich offenstehen. Es können neu aber auch andere liturgische Feiern wie Hochzeiten und Taufen an diesem besonderen Ort gefeiert werden.

Schwesternchor

Das frühere “Bethaus”, der Chorbereich der Klosterkirche hat eine klare Aufwertung erhalten. Der Hochaltar ist neu «zweiseitig» gestaltet, die Rückseite des Hochaltars mit einer würdevollen Holzverkleidung versehen. Damit wird auch dieser vergessene Teil der Klosterkirche wieder als Sakral- oder Kulturraum genutzt werden können.

Orgel

Schon früh stand eine Orgel in der Kirche. Dennoch ist der Bau 1716 einer neuen durch Johann Matthäus Abbrederis aus Rankweil zu erwähnen. Die heutige Orgel wurde 1886 als mechanische Orgel von Maximilian Klingler von Rorschacherberg erbaut und von Friedrich Goll 1912 pneumatisiert. Franz Gattringer erbaute 1923 neue Schleifwindladen und einiges neues Pfeifenmaterial. Auch die Orgel wurde einer umfassenden Restaurierung und Optimierung unterworfen.

Kulturelle Anlässe

Die Klosterkirche kann darüber hinaus auch vermehrt für weltlich-kulturelle Nutzungen genutzt werden, die dem sakralen Charakter des Gebäudes nicht widersprechen. Im Vordergrund steht die Veranstaltung von Konzerten –  von Einzelkünstlerinnen und -künstlern, kleineren Ensembles oder Chören.

ÖFFNUNGSZEITEN KIRCHE:
Täglich 06.30 – 20.00 Uhr

GOTTESDIENSTE IN DER KLOSTERKIRCHE
Jeweils vom 1. bis 3. Freitag im Monat
17.00 Uhr Beicht- und Seelsorgegespräch
18.00 Uhr Eucharistiefeier
Durchgeführt durch die Kath. Kirchgemeinde Teufen

GOTTESDIENSTE IM APRIL 2026
Freitag, 3. April (Karfreitag) und 10. April fallen aus
Freitag, 17. April  Eucharistiefeier mit Stefan Staub
Freitag, 1. Mai     Herz-Jesu-Freitag mit Stefan Staub

LINKS ZU:
Kirchenrestauration 2022-24
Kirchenbenützung